Immobiliare La Fiducia 2

call 0498800150 call 393 3191113 location_on Via Pietro Bembo, 32/A Padova (Veneto) mail lafiducia2@gmail.com

Appartamento a Noventa Padovana

location_on Noventa Padovana (Veneto)

€ 1.000

Riferimento:

Dettagli

Tipologia: Appartamento
Tipo contratto:
Affitto
Città: Noventa Padovana
Locali: 4
Bagni: 2
Camere: 2
Superficie: 125
Anno: -
Stato immobile: Ristrutturato
Classe Energetica: 233.3

Ambienti

check Balconi

Descrizione

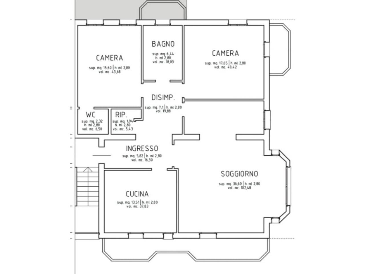
Noventa Padovana: in zona residenziale tranquilla comoda a tutti i servizi interessante appartamento in contesto di poche unità abitative, l'unità si sviluppa al piano secondo ed ultimo è di generose dimensioni (circa 120mq calpestabili). L'appartamento è composto da ingresso, un ampio soggiorno con uscita sul poggiolo e dotato di camitetto funzionante (non per uso cottura), cucina separata e abitabile, 2 camere matrimoniali, 2 bagni ed ulteriore poggiolo. Lo stabile è stato dipinto esternamente pochi anni fa, mentre l'appartamento è stato completamente rimodernato, bagno ristrutturato, serramenti rimessi a nuovo, pavimenti e porte interne nuove. L'unità ha utenze autonome e non ha spese condominiali. Non è presente il garage ma c'è molta possibilità di parcheggio. Libero a subito. Si cercano solo persone con ottime referenze. Contratto di durata 12 mesi. Per maggiori informazioni o visite contattare Marina: 340.6113794

Planimetrie

Localizzazione

Invia una richiesta di affitto

Recensioni

Vota e scrivi di seguito una recensione per l'immobile in questione

STAI CERCANDO DI VENDERE CASA?

Affidaci l'incarico e ci penseremo noi.

call

CHIAMACI ORA

0498800150

L'immobile è stato aggiunto ai preferiti.
arrow_upward