Immobiliare La Fiducia 2

call 0498800150 call 393 3191113 location_on Via Pietro Bembo, 32/A Padova (Veneto) mail lafiducia2@gmail.com

Casa Bi/Trifamiliare a Albignasego

location_on Albignasego (Veneto)

€ 415.000

Riferimento:

Dettagli

Tipologia: Casa Bi/Trifamiliare
Tipo contratto:
Vendita
Città: Albignasego
Locali: 4
Bagni: 2
Camere: 3
Superficie: 184
Anno: 2026
Stato immobile: Nuovo
Classe Energetica:

Ambienti

check Balconi
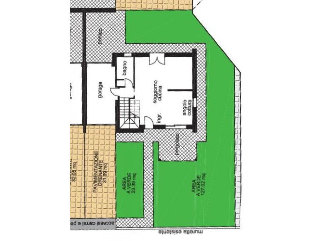
check Giardino - Mq: 178
check Box
check Posti auto coperti
check Posti auto scoperti

Caratteristiche

check Aria condizionata
check Predisposizione allarme
check Antenna TV autonoma
check Impianto elettrico a norma

Descrizione

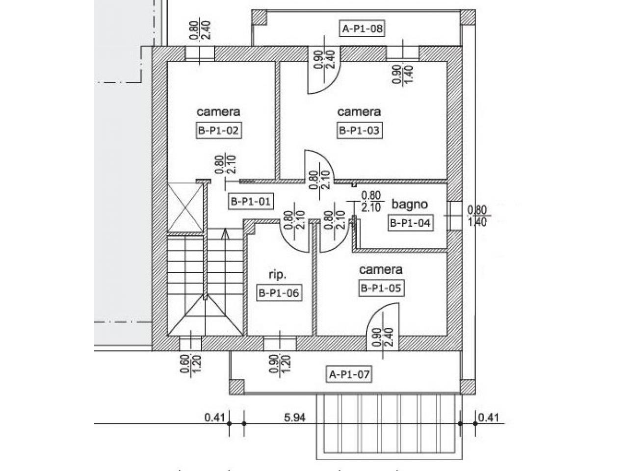
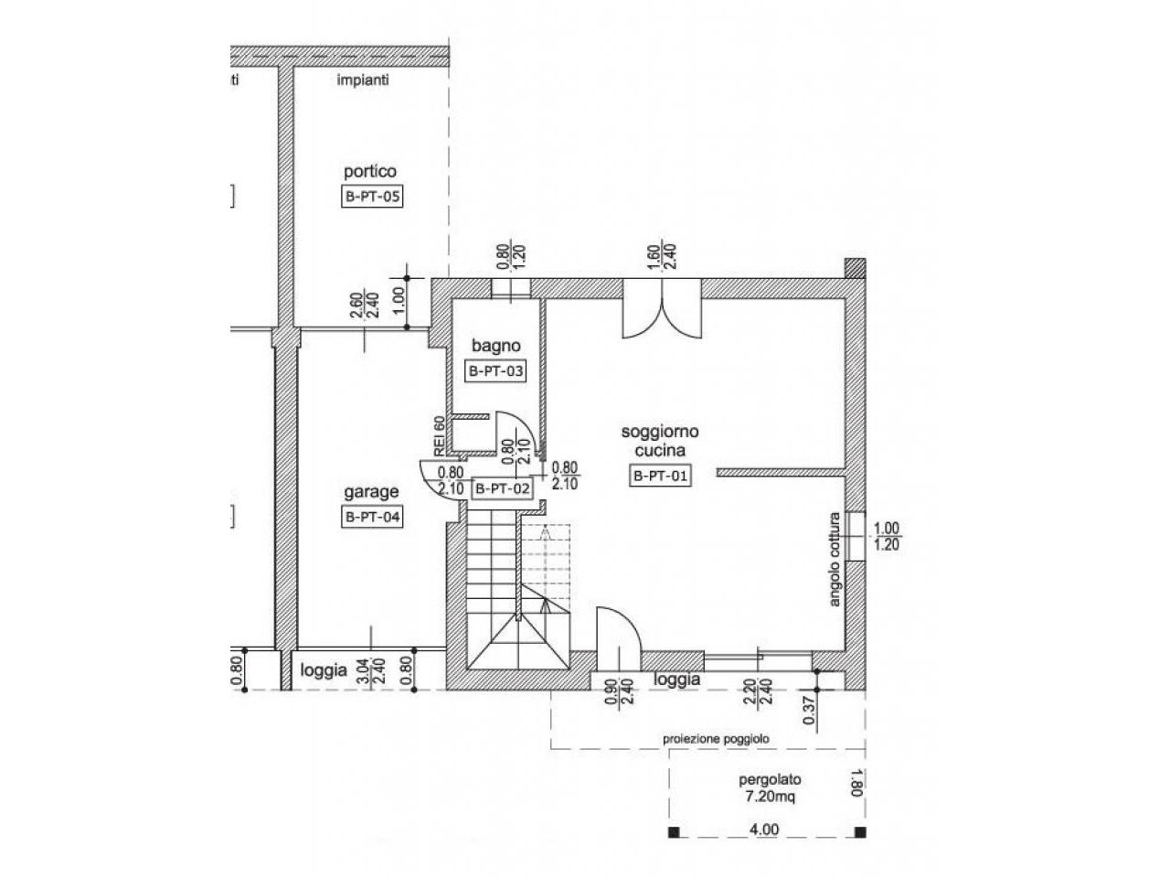
Albignasego nel quartiere di Lion proponiamo in vendita porzioni di bifamiliare di prossima realizzazione, in contesto residenziale comodo ai servizi (bus, scuole, ecc..). Le bifamiliari saranno sviluppate su due livelli, con al piano terra un'ampia zona giorno di oltre 40mq (con possibilità di separazione di ambienti cucina e salotto), bagno, garage e portico, entrambi ambienti riscaldati per un uso polifunzionale anche di questi spazi accessori. Al piano primo si svilupperanno 3 camere più una stanza studio, bagno e 2 poggioli. Completa l'unità uno scoperto privato di circa 180mq, comprensivo di un ulteriore posto auto. Le unità saranno realizzate con le nuove tecnologie che garantiscono ottime prestazioni energetiche: riscaldamento a pavimento con pompa di calore e sistema idronico per la climatizzazione (split predisposti), fotovoltaico da 5 kWh installato, VMC puntuale installata, predisposizione per allarme e colonnina di ricarica auto, tapparelle motorizzate ed ottime finiture da capitolato. Classe energetica prevista A4 Consegna Dicembre 2027, possibile personalizzazione degli spazi interni. Contatta l'ufficio per visionare i disegni di progetto, non perdere l'occasione di prenotare la casa adattandola alle tue esigenze!

Planimetrie

Localizzazione

Recensioni

Vota e scrivi di seguito una recensione per l'immobile in questione

STAI CERCANDO DI VENDERE CASA?

Affidaci l'incarico e ci penseremo noi.

call

CHIAMACI ORA

0498800150

L'immobile è stato aggiunto ai preferiti.
arrow_upward