Immobiliare La Fiducia 2

call 0498800150 call 393 3191113 location_on Via Pietro Bembo, 32/A Padova (Veneto) mail lafiducia2@gmail.com

Casa Bi/Trifamiliare a Albignasego

location_on Albignasego (Veneto)

€ 360.000

Riferimento:

Dettagli

Tipologia: Casa Bi/Trifamiliare
Tipo contratto:
Vendita
Città: Albignasego
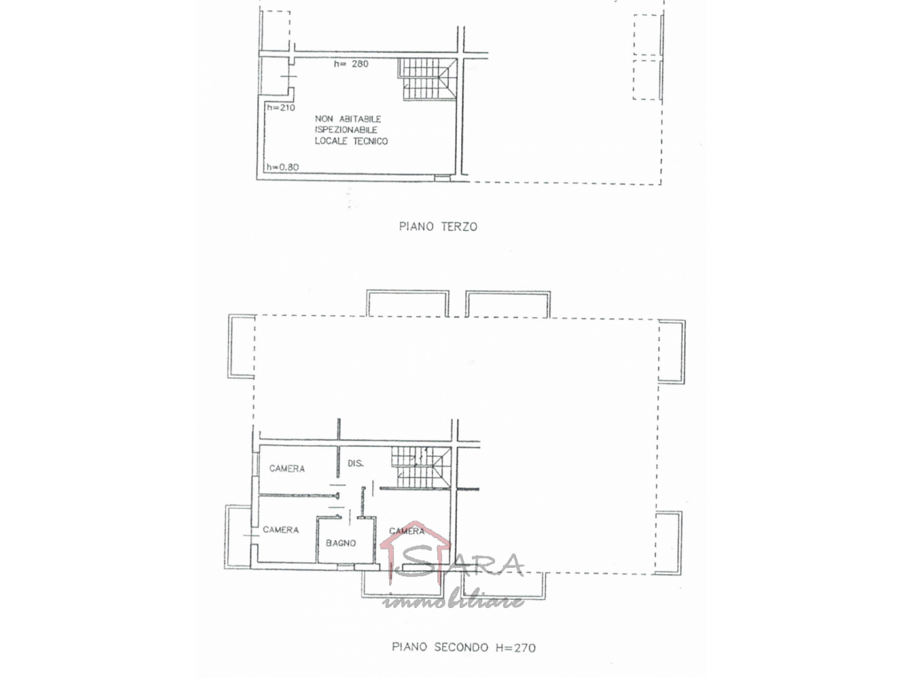
Locali: 10
Bagni: 3
Camere: 4
Superficie: 230
Anno: 2008
Stato immobile: Ottimo
Classe Energetica: 86.36

Ambienti

check Giardino

Descrizione

Porzione di QUADRIFAMILIARE di circa 230 mq – ALBIGNASEGO In una zona residenziale tranquilla, riservata e comoda ai servizi, all’interno di una strada chiusa e silenziosa, proponiamo in vendita porzione indipendente di quadrifamiliare sviluppata su tre livelli, ideale per chi desidera grandi spazi, comfort e funzionalità. L’abitazione si compone di: – Luminoso soggiorno di generose dimensioni – Cucina abitabile separata, perfetta per la vita quotidiana – 4 camere da letto, ideali per famiglie numerose o per chi lavora in smart working – 3 bagni, uno dei quali adibito a lavanderia – Garage ampio e ulteriore stanza ripostiglio La casa si distingue per la razionale distribuzione degli spazi, la tranquillità della zona e la vicinanza a tutti i principali servizi e collegamenti stradali. giardino sui 150mq

Localizzazione

Recensioni

Vota e scrivi di seguito una recensione per l'immobile in questione

STAI CERCANDO DI VENDERE CASA?

Affidaci l'incarico e ci penseremo noi.

call

CHIAMACI ORA

0498800150

L'immobile è stato aggiunto ai preferiti.
arrow_upward